Vous pouvez toujours téléphoner: +31 475 495 079
Voir les mobil-homes Outlet

De Bergjes Bellagio MZ

Pour
Vendu
De Bergjes Bellagio MZ De Bergjes Bellagio MZ De Bergjes Bellagio MZ De Bergjes Bellagio MZ De Bergjes Bellagio MZ De Bergjes Bellagio MZ De Bergjes Bellagio MZ De Bergjes Bellagio MZ
Lindy Peeters
Lindy Peeters Mobile-home designer “Un mobile home sur mesure offre des possibilités infinies. Je serai heureux de vous aider à construire votre mobile home de rêve”
Télécharger la brochure Appelez-nous Je souhaite obtenir plus d'informations Planifie ta visite
Caractéristiques
  • Référence:C-0467
  • Marque:
    De Bergjes
  • Type:
    Bellagio
  • À consulter sur:: Vraag onze medewerkers voor meer informatie.
  • Tailles disponibles:
  • Chambres à coucher:1

Choisissez vos propres couleurs, matériaux, dimensions et disposition:

En collaboration avec nos concepteurs de mobil-homes, vous créerez votre mobil-home de rêve sur mesure. Contactez-nous et laissez-vous inspirer par les nombreuses possibilités qui s'offrent à vous !

 
Découvrez vos opportunités
Vendu

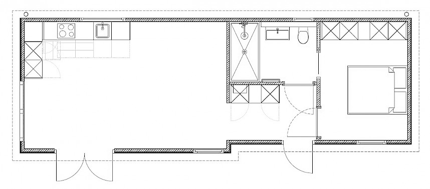
Le Bergjes Bellagio MZ a un caractère ludique et luxueux. La grande fenêtre panoramique du Bellagio lui donne l'air et la sensation d'être beaucoup plus spacieux que la plupart des modèles. Le Bellagio est construit sur un châssis lesté et les murs sont très isolés. En outre, le Bellagio est très spacieux et facilement accessible grâce aux larges passages. L'agencement astucieux vous permet de déterminer la position de la cuisine, de réorganiser la salle de bains, de changer les fenêtres et bien plus encore. 

Un chalet sur mesure de De Bergjes offre diverses possibilités. Contactez l'un de nos concepteurs de chalets et laissez-vous inspirer par les nombreuses possibilités.

Services complémentaires
 

Plans d'étage

Intéressant aussi pour vous

Forfait tout compris
De Bergjes Rushmore 1290/2
De Bergjes Rushmore 1290/2
dans le but de € 136.950,-
Plus d'informations
De Bergjes Serie Bergline Lodge 1100/2 Super
De Bergjes Serie Bergline Lodge 1100/2 Super
de la part de € 55.033,-
pour
Plus d'informations
De Bergjes Serie Rimo Neo 1150/2
De Bergjes Serie Rimo Neo 1150/2
dans le but de € 65.950,-
Plus d'informations
De Bergjes serie Monviso 1100/2
De Bergjes serie Monviso 1100/2
de la part de € 60.578,-
pour
Plus d'informations
Votre question?